Lakás eladó

Vác, Kisvác városrész
96.500.000 Ft
€ 245.953
4 szoba 4 szoba
100 nm 100 nm
2 fürdő 2 fürdő

Lakás eladó

Vác, Kisvác városrész

Leírás

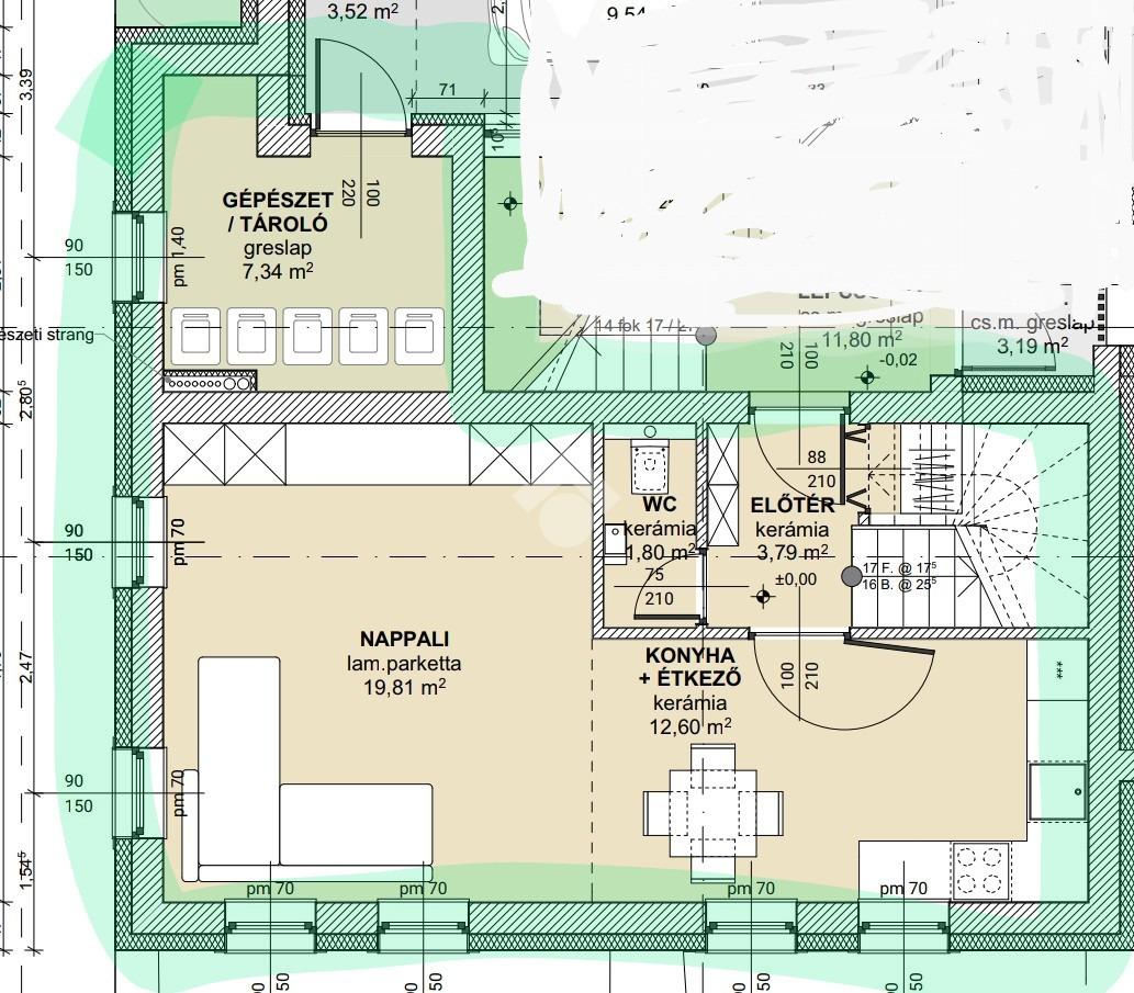
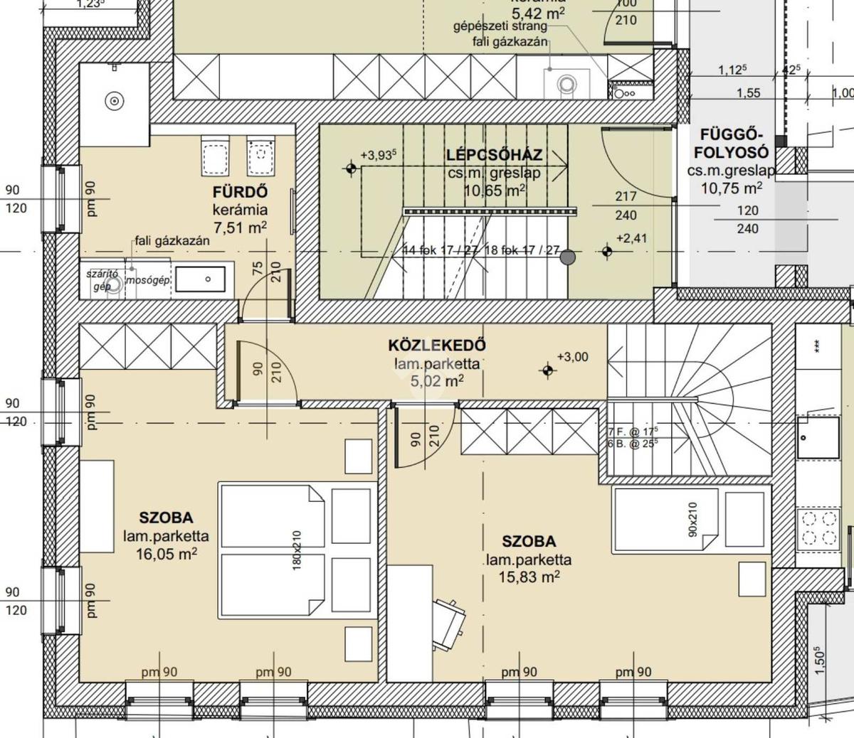
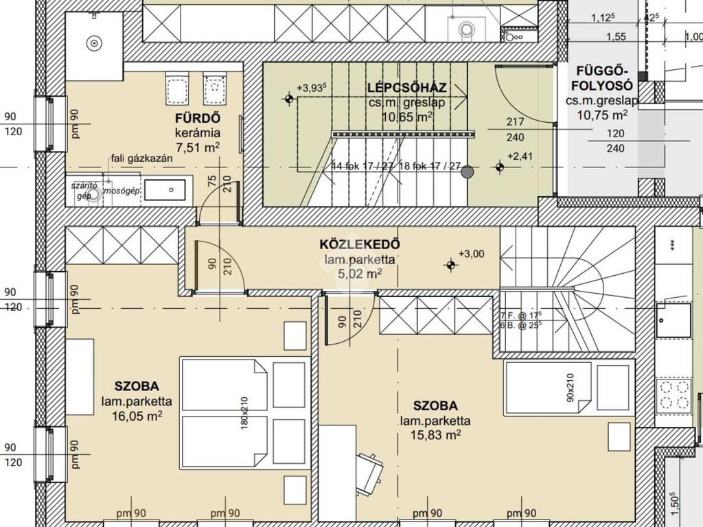
Kisvácon Dunaparttól 2 perc sétára, eladásra kínálunk egy 2026-ban befejezésre kerülő, jelenleg kivitelezés alatt álló, modern belső kétszintes lakást, júliusi átadással.

A lakás 3 szobával, amerikai konyhás nappalival, 2 fürdőszobával és külön spejzzel rendelkezik.
A komfortot egy BOSCH kondenzációs gázkazán biztosítja padlófűtéssel, valamint fűtő-hűtő klíma is beszerelésre kerül. A masszív műszaki tartalom része a 30 cm-es porotherm okos tégla falazat és a 15 cm dryvit hőszigetelés, így a lakás energetikailag kifejezetten kedvező, nagyon alacsony rezsivel lehet számolni.

Parkolás igény esetén az udvarban megoldható, 1.500.000-Ft/parkolóhely, továbbá a ház előtt ingyenes utcai parkolás is rendelkezésre áll.
A lakás Vác északnyugati részén található, így a csúcsforgalom elkerülhető, mivel az autópálya-felhajtó a közelben, gyorsan elérhető.

Iskolák a közelben találhatóak, emellett bolt, gyógyszertár, orvosi rendelő és benzinkút is pár perc sétára elérhető.

Az épületben külön lehet tárolót vásárolni 650.000-Ft/nm áron.

A szanitereket 250.000-Ft/fürdőszoba, hideg/meleg burkolatokat 5.000-Ft/nm-ig tartalmazza az ár. Amennyiben más burkolatokat, szanitereket választana a felár rászámolódik a feltüntetett árra.

Nyílászárók a legmodernebb tripla üveges thermo ablakok, redőny nem kerül beszerelésre, külön kérésre természetesen kivitelezhető.

Konyhabútor nem tartozik az ingatlanhoz, egyedi konyhabútorok elkészítését a kivitelező vállalja.

Kérdésével, illetve megtekintési szándékával keresse irodánkat.

Amennyiben hitelre lenne szüksége új otthonának megvásárlásához, profi, bankfüggetlen hitelközvetítő kollegáink díjmentesen állnak rendelkezésükre.

Összes mutatása

Tulajdonságok

Ref.:
59727
Állapot:
Új
Lift:
Nincs
Fűtés:
Gázcirkó (Gáz, Padlófűtés, Kazán)
Építőanyag:
Tégla
Építés éve:
2026
Összes mutatása

Energetikai tanúsítvány

Ennél az ingatlannál az energetikai tanúsítvány folyamatban van
Építés éve:
2026

Vegye fel velünk a kapcsolatot

* Ez a mező kötelező
Franchisee
La Casa Di Vác Kft.
2600 Váci Járás, Március 15. tér, 15.
2600 Váci Járás, Március 15. tér, 15. Vác
Hétfő-Péntek: 09:00-19:00,Szombat: 09:00-13:00

Munkatársaink


  • Horváth-Németh Ramóna
    Asszisztens

  • Eszter Floch
    Képviselő

  • Melina Farkas
    Képviselő

  • Horváth Balázs
    Irodatulajdonos
Franchisee
La Casa Di Vác Kft.
2600 Váci Járás, Március 15. tér, 15.
Tecnocasa Group Logo

Minden ügynökségnek saját tulajdonosa van és önállóan működik.

árfolyam 13/03/2026
EUR 392.35 HUF

cégünk

Elérhetőségeink

2026 Gruppo T.F.M. Szolgáltató Zrt. - P. IVA 27421275-2-42 - 1068 Budapest, Király utca 102.. Minden ügynökségnek saját tulajdonosa van és önállóan működik.

Adatvédelmi irányelvek | Cookies tájékoztató