Lakás eladó

Vác, Deákvár városrész
59.900.000 Ft
€ 152.669
2 szoba 2 szoba
56 nm 56 nm
1 fürdő 1 fürdő

Lakás eladó

Vác, Deákvár városrész

Leírás

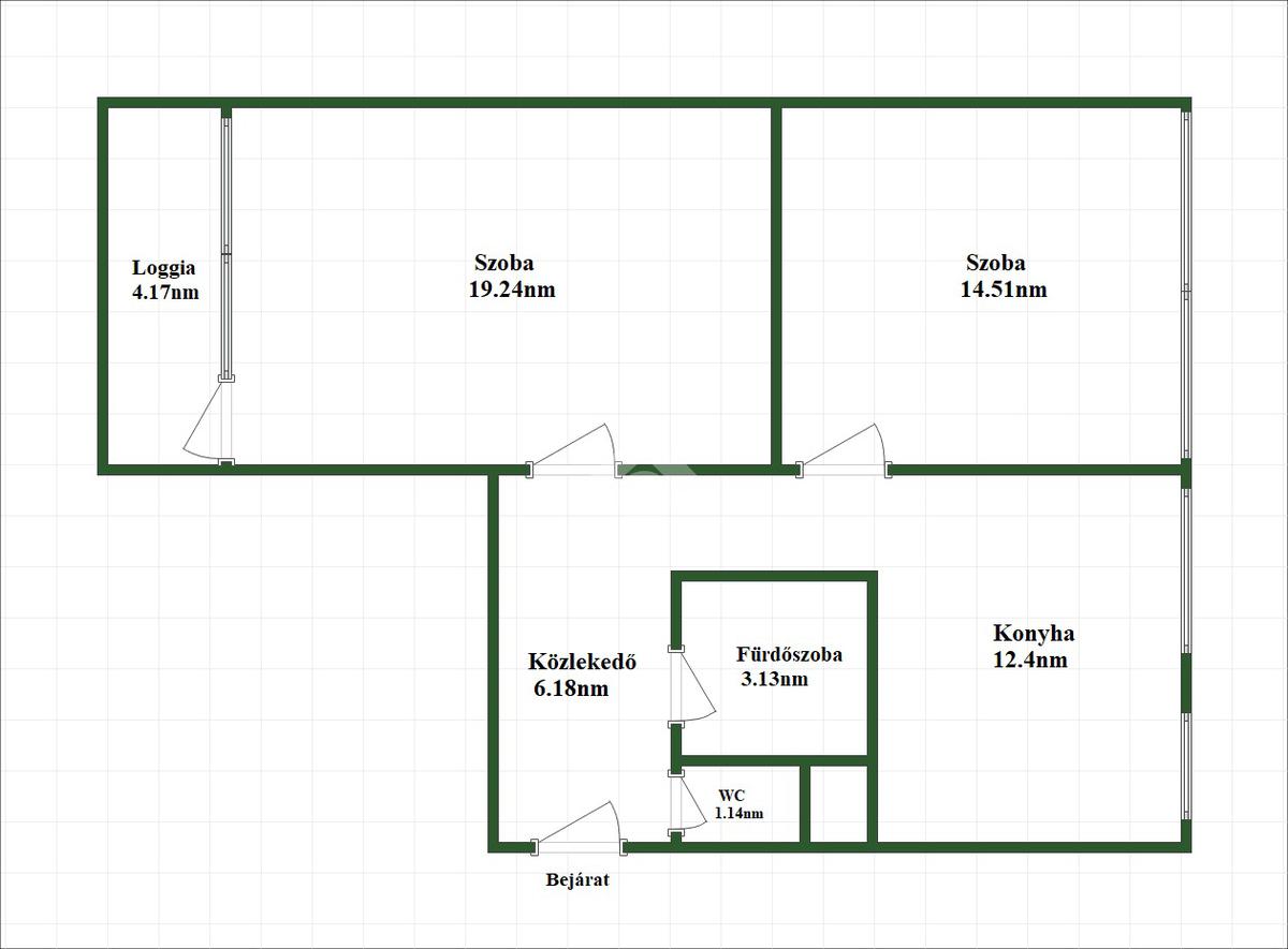
Vácon, a közkedvelt Deákváron eladó egy 3. emeleti, erkélyes lakás. A lakás jól átgondolt elosztású: előszoba, két külön nyíló szoba, konyha étkezővel, fürdőszoba és külön WC. Az ingatlan világos és barátságos, nyílászárói – egy szoba kivételével – dupla üvegű, thermo műanyag ablakok. A villamoshálózat részben felújított.

A fűtést egyedi mérős távhő biztosítja és emellett hűtő-fűtő klíma is rendelkezésre áll. Szigetelés 3cm a belső falakon. Délnyugati fekvésének köszönhetően a lakás egész nap napfényes, tágas, kellemes élettereket kínál, az erkély pedig remek lehetőséget ad a pihenésre vagy kikapcsolódásra. Parkolás az épület környékén az utcán ingyenesen megoldható.

Az infrastruktúra kiváló: 5 perc sétán belül elérhetők boltok, iskola, óvoda, bölcsőde, gyógyszertár, orvosi rendelő és buszmegálló, így a belváros gyorsan és kényelmesen megközelíthető. Nyugodt, mégis jól ellátott környezetben kínál ez az ingatlan kiváló lehetőséget új otthon megteremtésére.

Kérdésével, illetve megtekintési szándékával keresse irodánkat. Amennyiben hitelre lenne szüksége új otthonának megvásárlásához, profi hitelközvetítő kollegáink állnak rendelkezésükre.

Amennyiben eladásra lenne szükségük a vásárláshoz, irodánk egész Vác területén ingyenes értékbecslést vállal.

Összes mutatása

Tulajdonságok

Ref.:
59536
Állapot:
Emelet:
3
Lift:
Nincs
Fűtés:
Házközponti (Távfűtés egyedi méréssel)
Építőanyag:
Csúsztatott zsalus
Összes mutatása

Energetikai tanúsítvány

Ennél az ingatlannál az energetikai tanúsítvány folyamatban van
Építés éve:
1980

Vegye fel velünk a kapcsolatot

* Ez a mező kötelező
Franchisee
La Casa Di Vác Kft.
2600 Váci Járás, Március 15. tér, 15.
2600 Váci Járás, Március 15. tér, 15. Vác
Hétfő-Péntek: 09:00-19:00,Szombat: 09:00-13:00

Munkatársaink


  • Horváth-Németh Ramóna
    Asszisztens

  • Eszter Floch
    Képviselő

  • Melina Farkas
    Képviselő

  • Horváth Balázs
    Irodatulajdonos
Franchisee
La Casa Di Vác Kft.
2600 Váci Járás, Március 15. tér, 15.
Tecnocasa Group Logo

Minden ügynökségnek saját tulajdonosa van és önállóan működik.

árfolyam 13/03/2026
EUR 392.35 HUF

cégünk

Elérhetőségeink

2026 Gruppo T.F.M. Szolgáltató Zrt. - P. IVA 27421275-2-42 - 1068 Budapest, Király utca 102.. Minden ügynökségnek saját tulajdonosa van és önállóan működik.

Adatvédelmi irányelvek | Cookies tájékoztató