Ház eladó

Vác, Bácska dűlő
99.500.000 Ft
€ 271.828
4 szoba 4 szoba
86 nm 86 nm
1 fürdő 1 fürdő

Ház eladó

Vác, Bácska dűlő

Leírás

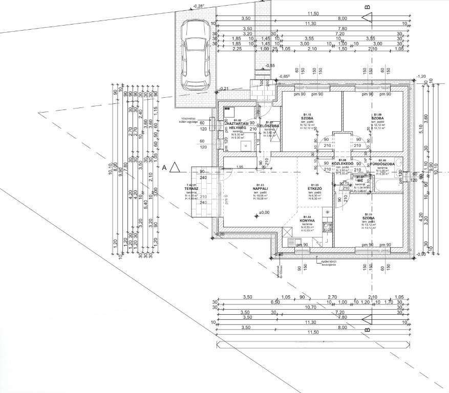
Vácon a Bácska-dűlőben kínálunk eladásra egy modern, új építésű családi házat!
A 87 nm-es otthon három szobával, amerikai konyhás nappalival, fürdőszobával, külön WC-vel és kényelmes terasszal várja leendő lakóit.

A ház kiemelkedő műszaki tartalommal készül: hőszivattyús fűtésrendszer padlófűtéses hőleadással, valamint fűtő-hűtő klímák gondoskodnak a megfelelő hőmérsékletről minden évszakban. A 15 cm-es szigetelés és a tripla üvegezésű, thermo műanyag nyílászárók magas energiahatékonyságot biztosítanak, így nemcsak komfortos, de gazdaságosan fenntartható otthont kínál.

Északi fekvésű, panorámás kilátásának köszönhetően minden nap élvezheted a környék szépségét. Az udvarban autóbeálló áll rendelkezésre, a környék pedig csendes és nyugodt.

Kiváló elhelyezkedés: a buszmegálló mindössze 10 perc sétára található, így a belváros könnyen megközelíthető, az autópálya pedig 5 perc alatt elérhető, ami ideális azoknak, akik gyors közlekedést szeretnének.

A ház 2026 nyarára készül el, és az új tulajdonos választhatja ki a burkolatokat, a befejezés előtt, így teljes mértékben személyre szabhatja az otthonát.

Kérdésével, illetve megtekintési szándékával keresse irodánkat. Hitelre lenne szüksége új otthonának megvásárlásához, profi hitelközvetítő kollegáink állnak rendelkezésükre.

Amennyiben eladásra lenne szükségük a vásárláshoz, irodánk egész Vác területén ingyenes értékbecslést vállal.

Összes mutatása

Tulajdonságok

Ref.:
59366
Állapot:
Új
Lift:
Nincs
Fűtés:
Házközponti (Padlófűtés, Hőszivattyús fűtés)
Építőanyag:
Tégla
Építés éve:
2026
Összes mutatása

Energetikai tanúsítvány

Ennél az ingatlannál az energetikai tanúsítvány folyamatban van
Építés éve:
2026

Vegye fel velünk a kapcsolatot

* Ez a mező kötelező
Franchisee
La Casa Di Vác Kft.
2600 Váci Járás, Március 15. tér, 15.
2600 Váci Járás, Március 15. tér, 15. Vác
Hétfő-Péntek: 09:00-19:00,Szombat: 09:00-13:00

Munkatársaink


  • Horváth-Németh Ramóna
    Asszisztens

  • Eszter Floch
    Képviselő

  • Melina Farkas
    Képviselő

  • Horváth Balázs
    Irodatulajdonos
Franchisee
La Casa Di Vác Kft.
2600 Váci Járás, Március 15. tér, 15.
Tecnocasa Group Logo

Minden ügynökségnek saját tulajdonosa van és önállóan működik.

árfolyam 30/04/2026
EUR 366.04 HUF

cégünk

Elérhetőségeink

2026 Gruppo T.F.M. Szolgáltató Zrt. - P. IVA 27421275-2-42 - 1068 Budapest, Király utca 102.. Minden ügynökségnek saját tulajdonosa van és önállóan működik.

Adatvédelmi irányelvek | Cookies tájékoztató